Friedhof Kapelle
Friedhof Kapelle
Friedhof Kapelle
Friedhof Kapelle
Friedhof Kapelle

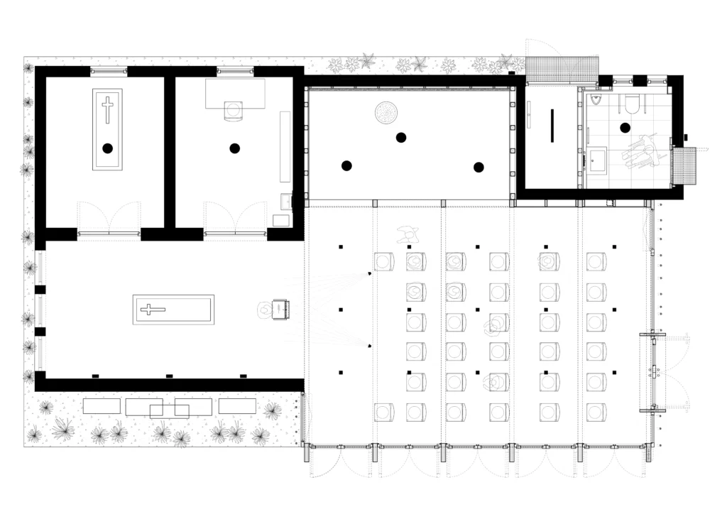
Um einen wettergeschützten Raum zu schaffen wurde die historische Friedhofskapelle erweitert.

03/2024

Friedhof Kapelle

Erweiterung Friedhofskapelle Hößlinswart

Die Friedhofskapelle aus den 50er Jahren wurde durch einen Holzanbau erweitert. Neben Technik und WC wurde im flachen 70er Jahre Anbau auch noch ein Raum der Stille integriert.